取り扱い店舗: 【神戸店】
加古郡播磨町上野添1丁目新築戸建
オール電化
南向きの3LDK
JR山陽本線「土山」駅まで徒歩7分
駐車2台可能(車種による制限有)
南側・幅員約4.3mに接道
外壁はサイディング張り
玄関横の土間収納・約3.5帖のウォークインクローゼットがあり収納充実
食器洗浄乾燥機や浴室暖房乾燥機など充実の設備
南向きのため陽当たり良好
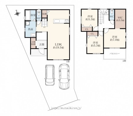
リビング階段のあるLDKは約19.5帖
複層ガラス使用
給湯はエコキュート
登録日/2025年11月14日 更新日/2025年11月20日 次回更新予定日/随時

物件詳細
新築戸建
3,680万円
兵庫県加古郡播磨町上野添1丁目- 最寄駅
-
- 山陽本線
- 土山駅 徒歩7分
- 間取り/面積
-
- 間取り
- 3LDK
- 土地面積
- 126.73㎡ / 38.33坪
- 延床面積
- 97.71㎡ / 29.55坪
- 延床面積1F
- 51.34m2
- 延床面積2F
- 46.37m2
- 建物構造
- 木造 2階建
- 築年月
- 2025年04月
この物件の主な特徴
即引渡可 小学校 徒歩10分以内 スーパー 徒歩10分以内 TVインターホン 駐車場タイプ 平面 駐車場タイプ 自走式 給湯 食器洗乾燥機 パントリー グリル コンロ口数 三口 IHクッキングヒーター カウンターキッチン システムキッチン ウォークインクローゼット クローゼット 収納スペース 全居室収納 トイレ2ヶ所 浴室乾燥機 浴室暖房 浴室に窓 シャワー バス広さ 1坪以上 シャンプードレッサー 独立洗面台 外壁サイディング 2階建 リビング階段 複層ガラス 全居室フローリング フローリング 室内洗濯機置場 汚水 下水道 上水道 公営 電気 オール電化 ※設備名をクリックで対象の設備の物件一覧を絞り込み- 学校区
-
- 小学校区
- - 距離:-
- 中学校区
- - 距離:-
- 間取り詳細
-
階数 区分 広さ 1F LDK 19.5帖 2F 洋 7.0帖 2F 洋 5.3帖 2F 洋 5.3帖 - 駐車場
-
- 駐車可能台数
- 有:-
- 駐車場所
- 敷地内
- 駐車料金
- -
- タイプ
- カースペース
- 公共設備
-
- ガス
- -
- 水道
- 公営水道
- 汚水
- 公共下水
- 雑排水
- 公共下水
- 接道状況 他
-
- 向
- 一方
- 角地
- -
- 【私道】
- 南
- 幅員
- 4.30m
- 接面
- 4.80m
- 私道
-
- 私道
- -
- 持分
- -
- 面積
- -
- セットバック面積
-
- 状態
- -
- 幅
- -
- 面積
- -
- 現況
- 新築
- 引渡時期
- 即引き渡し可
--- - 地目
- 宅地
- 地勢
- -
- 用途地域
- 第一種住居地域
- - 建ぺい/容積率
- 60%/172%
- 都市計画
- 市街化区域
- 建築許可理由
- -
- 建築確認番号
- 第HK24-21347号
- リフォーム
- 内装:-
-
外装:-
- - リノベーション
- -
- - 土地権利
-
- 権利
- 所有権
- 備考
- -
- 権利金
- -
- 再建築
- -
- 国土法届出
- -
- その他制限事項
- -
備考:- - 町会費
- --
- 備考
- 学校区:蓮池小学校(約650m)・播磨中学校(約1,800m)
容積率は前面道路幅員による制限数値です。
私道負担:37.00㎡(持ち分1/6)・14.66㎡(持ち分1/3)・5.57㎡(持ち分1/3) - 取引態様
- 専任
ローンシミュレーション
- 物件価格
- 3,680万円
- 金利
- 返済期間
-
年
※物件によってはローン年数が変わる場合がございます。
- 頭金
-
万円
※半角数字でご入力ください。
- ボーナス併用支払い
-
併用する
3680.00万円のうちボーナス返済分
万円
※半角数字でご入力ください。
- 月割返済額
- ボーナス支払い額
(年2回)
※金利につきましては各金融機関の審査金利及び融資金利により異なります。
実際の返済額は結果と異なりますので、資産計画の目安としてご利用ください。
詳しいお問い合わせは、こちらよりご相談ください。
(一社)兵庫県宅地建物取引業協会
(公社)近畿地区不動産公正取引協議会
(公社)全国宅地建物取引業保証協会
(公社)近畿地区不動産公正取引協議会
(公社)全国宅地建物取引業保証協会
Tel078-333-0713



























